
At the heart of the building is the entrance to the Blue Zone offices. A prominently visible entrance leads you inside, followed by a spacious staircase with escalators taking you upwards to the reception and the Work Café. The staircase is surrounded by large multimedia screens that create a visual journey to the Blue Zone, an experience that takes your mind off things and welcomes you into this unique environment.

At the heart of the building is the entrance to the Blue Zone offices. A prominently visible entrance leads you inside, followed by a spacious staircase with escalators taking you upwards to the reception and the Work Café. The staircase is surrounded by large multimedia screens that create a visual journey to the Blue Zone, an experience that takes your mind off things and welcomes you into this unique environment.

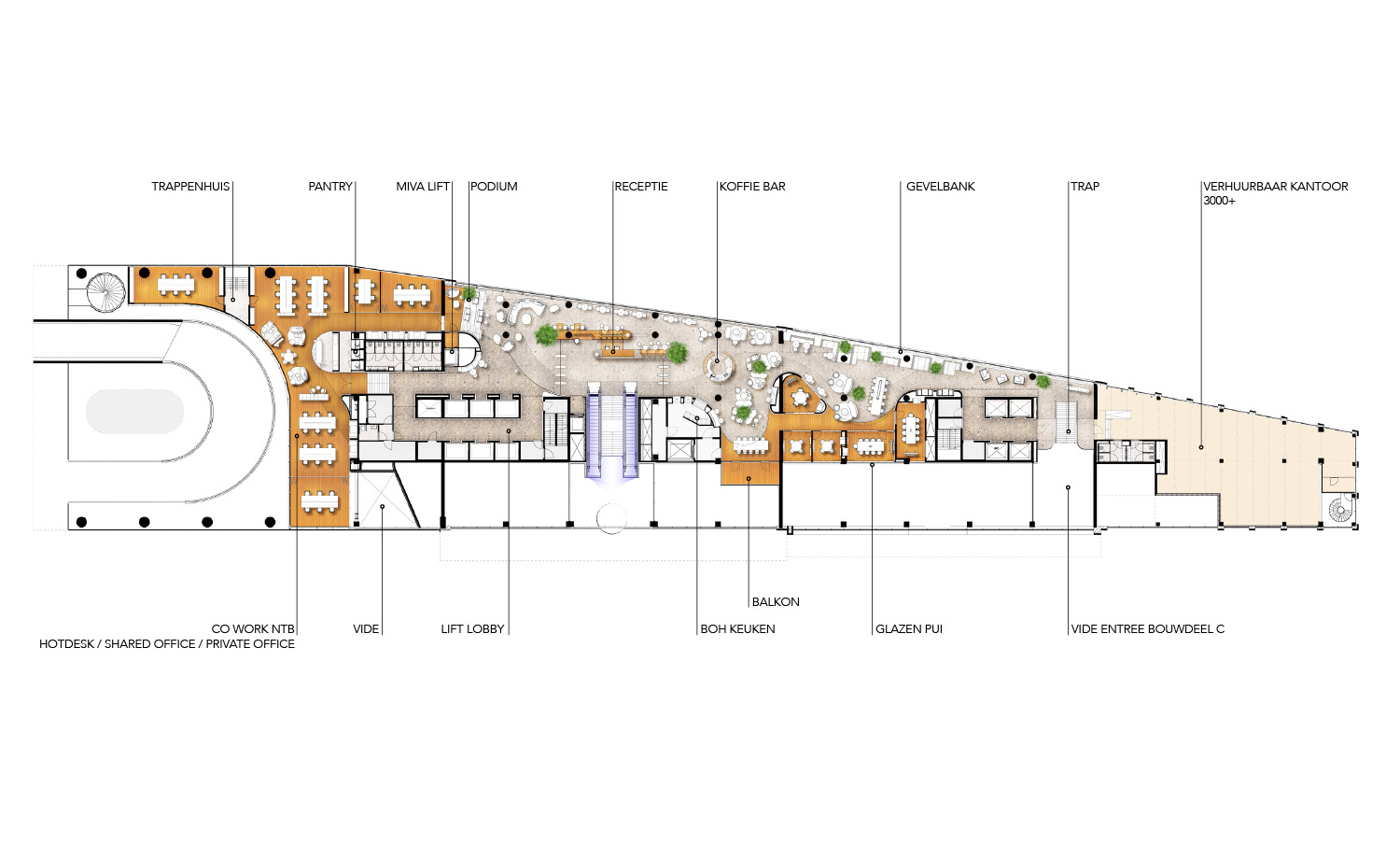
Arguably the most important space within the Blue Zone offices is the Work Café, located directly behind the reception, where users, visitors, the city, and the train station come together. It's a place where you can work informally, make preparations, hold conversations, meet colleagues, and catch up after a day full of meetings. The Work Café is a versatile space that can flexibly adapt to the users’ needs throughout the day. It's also referred to as the "third space": a place to work and spend time between your home and regular workplace. The Work Café also has several meeting rooms and quiet areas, allowing for more formal meetings to take place as well.
The expansive floorplates are open and highly efficient allowing its user to tailer its space tot he changing needs of its business and employees over time. The building is equipped with high quality climate ceiling and provide ultimate flexibility through it raised computer floors. The setup op the floors provide ample interior transport facilities including the option to equip the floors with (an) additional internal staircase connection(s).





If you need workspace for an hour, a day, a week, month or a year; our Co-Working spaces is the place to be. Work along like-minded professionals in the vibrant co-working spaces in Blue Zone Offices, with break out areas and networking events to foster collaboration and growth. Drop in and hot-desk in an open-plan workspace, or reserve your own dedicated desk in a shared office.

Where better to book a meeting room? Two minutes from the Rotterdam Central Station in the heart of the Rotterdam Central Business District. The Blue Zone Meeting Centre offers 21 fully equipped meeting rooms with a capacity varying from a 4-person meeting room to auditorium with a capacity of 80 seats.
If you’re going to book a meeting room, book the best!

The era of meeting in large, brightly lit rooms with suspended ceilings is long gone. The Social Club is the modern answer to the traditional meeting center and is located on the building’s top two floors. Here, you’ll find formal and informal meeting spaces in a club-like environment: living rooms for relaxing, meeting suites for hosting and break-out sessions, private rooms for confidential discussions, and quiet spaces for concentrating or making calls between appointments.
The Social Club includes an intimate restaurant and event spaces for various programs. A central tier connects the two floors, serving as a city theater for presentations and other performances. The view of Rotterdam from here is unique. Visitors to the club have access to the rooftop terrace, which can be used on sunny days. During office hours, the Social Club is accessible via the general elevators; outside office hours, the panoramic elevators provide access. Thanks to its wide variety of functions and activities, the Social Club remains lively from early morning until late in the evening, including weekends.

The monumental parking garage entrance ramp of the Central Post building serves as the backdrop for this unique bar with brewery. An industrial spot where beer is brewed, tasted, and enjoyed. At the heart of the ramp is the iconic Wokkelbar, directly connected to the brewery one floor above. The bar is an accessible tasting room with both indoor and outdoor seating, where you can enjoy various types of locally brewed beer along with a simple menu for lunch and dinner.

Blue Zone aims to be a building that is accessible and connected to the neighborhood and the surrounding city. Therefore, the ground floor will be filled with functions that are not only relevant to the building's users but also to the local residents. The ambition is to house a traditional bakery with a café in the ground floor, where you can get fresh bread, good coffee, sandwiches, and pastries daily. Additionally, the bakery can supply other F&B outlets in the building with its freshly baked products. Alongside the bakery, we will also invite other local entrepreneurs to run sustainable businesses on the ground floor.

The beautiful, three-story atrium at the corner of the Schiekade will also serve as an entrance to the Blue Zone. From here, you can access the Work Café on the balcony floor via stairs and an escalator. This entrance could also become an exclusive access point for a major tenant within Blue Zone. Adjacent to this atrium is a Bike Café, connected to the bicycle parking in the basement.

The building's highest volume houses The Canteen, which is connected to both rooftop gardens. It’s not a traditional communal restaurant but a modern concept with an open kitchen at its center. Here, fresh meals are prepared daily with ingredients sourced from the Rotterdam area. From the kitchen, you walk into the spacious dining room, offering a panoramic view of the city. The Canteen also has direct access to both rooftop terraces, so you can enjoy your meal outside in good weather. It’s the perfect place for a healthy, flavorful meal or a snack, designed for breakfast, lunch, dinner, and everything in between.



Blue Zone park is situated on the rooftops of the building, creating an intimate urban oasis in het heart of the city. The park invites the users and visitors to enjoy the outdoors to interact, have an informal meeting or simply enjoy a ray of sunlight. The rooftop garden further reduces heat, retains water and increases biodiversity. In essence the Blue Zone park is built around happiness, creating a perfect symbiosis between people and nature.





Blue Zone offers the users of the top office floors the unique possibility to create private sun-filled terraces with panoramic views over the city.

Blue Zone Offices offers ample parking for both cars and bicycles. The cars can be parked in the fully automated parking garage situated underneath the building with a total capacity of 230 parking spaces, of which a large number will provide the possibility to charge EV's.
The bicycle garage can be reached on the ground floor via the bicycle café and offers a capacity of 932 bike storage spaces.

Blue Zone aims to be a building that is accessible and connected to the neighborhood and the surrounding city. Therefore, the ground floor will be filled with functions that are not only relevant to the building's users but also to the local residents. The ambition is to house a traditional bakery with a café in the ground floor, where you can get fresh bread, good coffee, sandwiches, and pastries daily

The entrance to the public elevators, which take visitors to the rooftop, is combined with the entrance to the parking garage. A wide staircase with escalators leads from the ground floor to the balcony level, offering a clear view of the many train tracks of Rotterdam Central Station. From this balcony, the elevators depart, giving you access to the public terrace, The Canteen, and, if invited, the Social Club.


